電源防雷器 M1C320-40II-1
電源防雷模塊(Ⅱ類:8/20μs)
電源防雷模塊(Ⅱ類:8/20μs)
一、產品描述
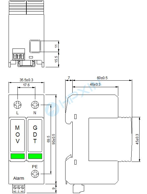
產品采用35毫米DIN導軌安裝方式,電涌保護模塊可獨立更換,便于安裝及維護,帶有遙信告警接口(干接點),便于遠程監控電涌保護器狀態。
二、產品特點
1、泄放能力強
2、泄流更均勻
3、內置多路過熱斷路保護
4、內置多路過流斷路保護
5、失效指示
6、抗環境能力強
7、一體化設計
三、結構尺寸

技術參數:
項目 | 技術參數 |
產品型號 | M1C320-40Ⅱ-1 |
額定電壓Un | 230VAC |
最大持續運行電壓Uc | L-N:320VAC,N-PE:255VAC |
標稱放電電流In(8/20μs) | 20kA |
最大放電電流Imax(8/20μs) | 40kA |
電壓保護水平Up(In) | L-N:≤1.5kV,N-PE:≤1.0kV |
限制電壓Up(5kA 8/20μs ) | L-N:≤1.0kV,N-PE:≤0.8kV |
暫態過電壓特性UTOV | L-N:400V/5sec,N-PE:1200V/200ms |
前置熔斷器 | 125AgL |
耐受短路電流 | 25kArms |
端子接線范圍 | 1.5 mm2~25mm2(柔性)/35mm2(剛性) |
告警端口最大允許工作電流 | 250V/0.5A(AC)0.1A(DC) 125V/1A(AC)0.5A(DC) |
外殼阻燃等級 | UL94 V-0 |
外殼防護等級 | IP20 |
